Der Betriebshof an der Schäftlarnstraße
Betriebshof 1 Schäftlarnstraße Nr. 32
1892 – 1943
- 1892 Bau für die Pferdebahn der „Gemeindlichen Trambahn“ mit den Linien XI und XII
- 1895/96 Umstellung auf elektrischen Betrieb
- 1898 Bau der ersten Zentralwerkstätte
- 1923 Umzug der Zentralwerkstätte in die neue Hauptwerkstätte an der Stadelheimer- / heute Ständlerstraße (heutige HW)
- 1924 Einzug der Fahrleitungswerkstätte und der Kraftwagenhalle
- 1943 fast vollständige Zerstörung durch Luftangriff
- 1963 Auszug der Fahrleitungswerkstätte und Räumung des Geländes
- Heute nichts mehr vorhanden, Gelände wird von Großmarkthalle genutzt

Betriebshof Schäftlarnstraße nach 1924 mit vergößertem Bürogebäude und Fahrleitungsabteilung.
Die Vorgeschichte
Am 6. November 1889 kam es zur Gründung der Lokalbahn Aktien-Gesellschaft und Cie. Ursprünglich wollte Ende des 19. Jahrhunderts die LAG die Isartalbahn am Sendlingertorplatz starten lassen. Die Verhandlungen zogen sich hin, da die LAG eine eigene Straßenbahn vom Sendlinger Tor zum Isartalbahnhof bauen wollte. Dieses Projekt genehmigte die Stadt aber nicht.
München war Ende des 19.Jahrhunderts im Süden an der Isar geprägt von Ansiedlungen von Betrieben, die das Wasser, die Wasserkraft und die Transportmöglichkeiten auf der Isar nutzten. Das begann im Süden mit der Brudermühle und weiter diversen Papiermühlen, der Oberkalblmühle und einer Wollfilz-Manufaktur. Die Straße, die hier entlangführte hieß seit 1835 Staubstraße und machte ihrem Namen alle Ehre.


Ein Versuch, die Situation damals am Dreimühlenbach geografisch aufzudröseln: Ein Stadtplan von 1865 überblendet mit der heutigen Situation. Die Isar läuft unverändert. Auf der Thalkirchner Straße, damals eine Allee ins Isartal, stand auf der Höhe der Reifenstuehl- /Ehrengutstraße das Zollhaus und der Schlagbaum des Burgfriedens um München. Weiter südlich war das Wirtshaus „Beim Greif“, heute die Gaststätte Großmarkthalle. Süd-östlich davon sieht man die Papierfabrik und direkt drunter die Wollfilzmanufaktur am Dreimühlenbach. Auf dem Gelände dieser beiden Mühlen und um sie herum begannen 1890 die Planungen eines Trambahndepots. Die ersten Entwürfe sprechen immer von dem „Depot am Dreimühlenbach“, später dem „Depot an der Staubstraße“.

Auf den am 10.3.1892 eingereichten Plänen sieht man schon die Bahnanlagen der LAG der Isartalbahn oben und die geplanten zwei Hallen des Depot am Dreimühlenbach, die aber so nie realisiert wurden. Dieser Bach wird nördlicher von einer Wollfilz-Manufaktur benutzt. Zu diesem Zeitpunkt war die Papiermühle bereits verschwunden.

Bodenspekulation anno 1892:
„…Wir könnten unter der weiteren Voraussetzung, daß dieß mit dem Beschlusse über den Betrieb von Schankwirthschaften im Einklang steht, die Zustim̅ung zur Errichtung zweier Hallen u. eines Zuganges von der neuen Staubstraße und zum Wirthsgarten in widerruflicher Weise ertheilt werden, da die Spekulationslust wohl ohnehin bald Sorge tragen wird, das gegenüber dem Localbahnhof gelegene werthvolle Bauland in ergiebigster Weise aus zu nützen….“

Der erste Betriebshof wird gebaut…….

Der für die gemeindlichen Pferdebahnlinien Färbergraben – Isartalbahnhof und Bayerstraße – Giesing benötigte Betriebshof wurde 1892 auf dem gemeindlichen Grundstück an der Schäftlarnstraße No. 32 errichtet. Es entstand ein Stallgebäude mit fünf Schiffen für 100 Pferde und eine Wagenhalle mit drei Schiffen und 16 Gleisen für 64 Wagen. An der Südseite der Wagenhalle befanden sich diverse Nebenräume.

Die Gleise der Wagenhalle waren mit Rolltoren verschließbar. Über die zweigleisige Zufahrt erfolgte die Verteilung auf die Hallengleise dann durch einen Transporteur (heute Schiebebühne).
Der erste Bau für die Pferdebahn der „Gemeindlichen Trambahn“ mit den Linien XI und XII und rechts neben der Wagenhalle das Stallgebäude für die Pferde

Hinter der Wagenhalle befand sich ein Schmiedegebäude.
An der Schäftlarnstraße befand sich an der südlichen Grundstücksgrenze ein Betriebsgebäude mit Diensträumen im EG und Büros und Stallmeisterwohnung im OG. Ca. 1894 wurden die zwei nördlichen Hallengleise in provisorische Pferdeställe für weitere 15 Pferde umgebaut. Bereits 1895 begann die Umrüstung für den elektrischen Betrieb (Betriebsaufnahme 1896).
Die provisorische Stallung in der Wagenhalle wurde in eine Lackierwerkstätte umgebaut.
Depot Schäftlarnstraße 1896: Einbau einer Lackiererei in Gleis 1 der Wagenhalle für den elektrischen Betrieb.


Erst 1894 erteilte der Magistrat der Stadt die Zustimmung zur Elektrifizierung der gemeindlichen Linien. Am 23. Juni 1895 wurde der gemischte Betrieb auf der ersten Strecke Färbergraben – Isartalbahnhof aufgenommen, d.h. zwischen den Pferdebahnen verkehrten die ersten vier elektrischen Wagen. Wenige Tage später schon erfolgte die Umstellung auf den vollelektrischen Betrieb und das Anhängen eines unbespannten Pferdebahnwagens als Anhängerwagen.
Die Vorgeschichte:
Wir schreiben das Jahr 1895 : Das Elektrizitätswerk an der Westenriederstraße lieferte ab 1891 ca. 51 KW Strom, das neu gebaute Muffatwerk am Auer Mühlbach ab 20. Februar 1894 sogar 140 KW und das sogar auch, wenn der Mühlbach wenig Wasser hatte oder vereist war, weil dann eine Dampfmaschine die Turbinen antrieb. Bald kam auch das Maximilianswerk etwas bachabwärts dazu mit 219 KW. Durch Verträge war es der Stadt gestattet, nur max. 440 KW in Strom zu wandeln. Damit konnten gerade mal ein paar innerstädtische Trambahnen, etliche Bogenlampen und einige Wirtshäuser versorgt werden, Strom für Privatpersonen gab es erst ab 1898.

Provisorische Kraftstation der Firma UEG / AEG
Bereits im März 1895 begann die Umrüstung der gemeindlichen Münchner Trambahn für den elektrischen Betrieb mit der Fahrleitungserstellung vom Färbergraben zum Isartalbahnhof. Nachdem anfangs geplant war den Strom in eigenen Kraftstationen zu erzeugen, erklärte sich die Stadt dann doch bereit, den Strom für die Trambahn unter sehr günstigen Bedingungen zu liefern. Jedoch konnte die Stadt die zusätzlichen Stromerzeugungsanlagen nicht rechtzeitig fertig stellen und auch das neue Isarkraftwerk am Stauwehr unterhalb der Maximiliansbrücke war noch nicht betriebsbereit. Daher suchte die Trambahn nach einer eigenen Behelfslösung. Die Union-Elektrizitäts-AG, kurz darauf dann AEG, bot ein provisorisches Dampfkraftwerk auf dem Gelände des Betriebshofs in der Schäftlarnstraße an. Dieses wurde am 15.Juni 1895 noch vor den ersten Schulungsfahrten in Betrieb genommen. Vom 17. bis 22 Juni konnten dann die ersten elektrischen Triebwagen zur Personalschulung eingesetzt werden. Bereits am 23. Juni begann dann ein gemischter Betrieb mit vier Motorwagen und vier Pferdebahnwagen und bereits am 27. Juni war die Linie komplett auf elektrischen Betrieb umgestellt. Wie bereits oben erwähnt, verlief der elektrische Betrieb aber bis zur Stromlieferung aus städtischen Kraftwerken Anfang November noch nicht reibungslos, da das provisorische Kraftwerk hin und wieder ausfiel.

Am 25. Mai 1895 genehmigte der Bürgermeister diese Kraftanlage mit schwungvoller Unterschrift.
Die Pläne des provisorischen Kraftwerks vom Mai 1895 zeigen sehr schön seinen Aufbau. Es besaß zwei kleine Dampfkessel und eine Einzylinder-Dampfmaschine mit zwei Schwungrädern, die über einen Flachriemen dann die Dynamomaschine antrieb. Dieses provisorische Kraftwerk war bis zum 2. November 1895 in Betrieb. Dieser verlief allerdings nicht immer störungsfrei. Ab dem 3. November 1895 konnte die Trambahn dann mit Strom aus dem städtischen Muffatwerk versorgt werden. Wegen der kurzen Betriebszeit von nur 4 ½ Monaten wurde anscheinend das provisorische Kraftwerk in keinen Plan des Betriebshofs Schäftlarnstraße eingezeichnet, obwohl sonst jeder noch so kleine Umbau in den Plänen dargestellt ist. Auf jeden Fall zeigt dieser Vorgang mit welch enormer Flexibilität unsere Urgroßväter damals technisches Neuland betraten und Visionen umsetzten. Ein kleines Kraftwerk aufstellen und dafür erst kurz vor Fertigstellung eine Baugenehmigung erhalten wäre heute undenkbar.

Im Betriebshof 1 an der Schäftlarnstraße steht einer der ersten Z-Triebwagen auf der Schiebebühne
Die Hallentore wurden wegen der Fahrdrähte jetzt mit zweiflügeligen Hallentoren verschlossen.
1896 baute man in den an der Schäftlarnstraße gelegenen Teil des Pferdestalls eine kleine Reparaturwerkstätte für die elektrischen Triebwagen ein.

Erste Reparaturwerkstatt für elektrische Triebwagen im ehemaligen Pferdestall 1896

1897 Umbau des alten Pferdestalles in eine Anhängerwagenhalle, Zufahrt von der Rückseite über einen Transporteur.


Eine Gesamtansicht des für elektrischen Betrieb umgebauten Betriebshofs zeigen diese Bilder im Zustand von 1897. Die restlichen vier Abteilungen des Pferdestalls wurden 1897 in eine Anhängerwagenhalle umgebaut.
Ende 1898 wurde für die starke Ausweitung des elektrischen Betriebs die neu große Wagenhalle südlich der bisherigen Wagenhalle in Betrieb genommen. Sie bot Raum für 102 Motorwagen auf 12 Gleisen. Das südlichste Gleis war abgetrennt und besaß Öfen zum Trocknen der Motorwagen und eine zusätzliche eingleisige Motorwagenwerkstatt. Auch die neue Halle wurde über den verlängerten Transporteur bedient.

Die kleine Reparaturwerkstätte im östlichen Teil des Pferdestalls wurde bereits wieder aufgegeben und in ein Salz- und Sandlager und weitere Diensträume umgebaut.
Der Bahnhof 1 nach der Elektrifizierung ca. 1898 mit neuer Motorwagenhalle aber vor Verlagerung der Hauptwerkstätte.

Da die erste kleine Werkstätte für elektrische Trambahnwagen in alten Bahnhof 2 in der Äußeren Wiener Straße schon nach kurzer Zeit für den sich ausdehnenden Betrieb zu klein wurde, fasste die Direktion schon 1897 den Beschluss eine neue Werkstätte beim Betriebshof Thierschstraße zu bauen. Der Münchner Magistrat lehnte diesen Standort jedoch ab und stellte daher südlich des Betriebshofs 1 in der Schäftlarnstraße ein Grundstück für eine neue Zentralbetriebs-Werkstätte zur Verfügung. Der Bau wurde am 20. Juni 1898 begonnen und bereits Ende Dezember waren die ersten zwei Gebäude bezugsfertig.

Grundriss Werkstätte Ostseite mit Wohn- und Bürogebäuden erbaut 1898

Neubau der Zentralwerkstätte Schäftlarnstraße Dezember 1898
Direkt an der Schäftlarnstraße befanden sich zwei Gebäude in Ost-West-Richtung, das südliche Gebäude mit zwei Gleisen für Holzbearbeitung (Wagenkästen) und das nördliche Gebäude mit zwei Gleisen für Metallbearbeitung (Fahrwerke, Rahmen)
Die zwei Werkstattgebäude waren an der Schäftlarnstraße mit einem zweistöckigen Wohn – und Verwaltungsgebäude verbunden. An der Hofseite verband sie ein Gebäude mit einer Spenglerwerkstätte. Die Zufahrt erfolgte über ein Gleis zwischen der Motorwagenhalle und einem Transporteur auf der Westseite der Werkstätten. Westlich der Werkstätten war noch ein Gebäude mit neun Gleisen an den Transporteur angeschlossen, das als Maler- und Lackiererwerkstätte diente.


Betriebshof Schäftlarnstraße mit der neuen Zentralwerkstätte mit großer Lackiererei ab 1898.
An dieser Stelle bedanken wir uns herzlich beim Stadtarchiv München, dem Staatsarchiv München und dem Bayerischem Staatsarchiv, die uns umfangreich Einblick in viele Dokumente geboten haben, die Grundlage für diese umfassende Dokumentation. Es waren über 30 großformatige Originalpläne und viele Dutzend Seiten Schriftverkehr zu den Genehmigungsverfahren, die von Reinhold Kocaurek dort gehoben, recherchiert und kopiert wurden. Unser Vereinsmitglied Gert v. Rosen hat die altdeutschen Schrift übertragen. Unser Archivchef Klaus Onnich griff für diese Dokumentation tief in sein Bilderarchiv. Dieter Kubisch hat dann diese umfassenden Dokumentation zusammengefasst, die von Reinhold Kocaurek dann in das Web-Format umgesetzt wurde.

Ab Dezember 1898 sind in der Zentralwerkstätte an der Schäftlarnstraße die Maler- und Lackierer-Werkstätten mit insgesamt 9 Gleisen über einen Transporteur erreichbar.
Die baulichen Veränderungen und Erweiterungen gingen aber fast ohne Unterbrechung weiter. Noch 1898 wurde für die Zufahrt von Depot und Zentralwerkstätte in der Schäftlarnstraße ein drittes Gleis verlegt. Im Herbst 1900 folgte der Ersatz des Transporteurs vor den Wagenhallen durch Gleisharfen, um die umständlichen Rangierbewegungen beim Befahren der Hallen zu vereinfachen.
Depot Schäftlarnstraße 1900 nach dem Ausbau des Hallentransporteurs und Umbau auf Weichenharfe.

1902 wurde das Gelände südlich der Zentralwerkstatt um 4000 m³ vergrößert, um Lagerplatz für Oberbaumaterialien und die Hinterstellung von Beiwagen zu schaffen. Dazu wurde 1904 eine provisorische hölzerne Wagenhalle für 48 Beiwagen errichtet.
Im Februar 1910 entstand auf dem Oberbaulagerplatz eine weitere hölzerne Wagenhalle für 32 Motorwagen. Diese hölzerne Halle diente dann ab Januar 1914 als provisorische Schreinerwerkstatt. Von Juli bis Oktober 1914 wurde die Beiwagenhalle im ehemaligen Pferdestall zu Lager- und Büroräumen umgebaut. Ab Juli 1915 diente die alte Wagenhalle als Kraftwagen-Einstellraum und als Halle für die Fahrleitungs- und Gleisunterhaltungs-Werkstatt.
Depot und Zentralwerkstätte 1910 mit zwei provisorischen hölzernen Wagenhallen und Gleislager.


Ab 1911 wurde der Isartalbahnhof von der Linie 10 über die neue Strecke durch die Thalkirchnerstraße und Lagerhausstraße bedient. Die alte Strecke durch die Reifenstuel- und Dreimühlenstraße blieb aber noch erhalten und ergab diese schöne Gleisanlage am Anschluß des Betriebshofs Schäftlarnstraße oben rechts.
Am 16.04.1910 erreichte die Linie 30 den Isartalbahnhof und den Betriebshof Schäftlarnstraße erstmals über die Route Montgelas-/Törringstraße – Maxmonument – Isartor – Baaderstraße – Auenstraße – Isartalbahnhof.

Erst 1915 erhielt der Betriebshof Schäftlarnstraße die Nummer 1.
Durch die Errichtung der neuen Hauptwerkstätte in der Stadelheimer Straße (heute Ständlerstraße) konnte die Zentralwerkstatt Ende 1923 aus der schon viel zu kleinen Anlage an der Schäftlarnstraße ausziehen.
Die ehemaligen Werkstattgebäude wurden jetzt einer neuen Nutzung zugeführt. Die beiden Werkstätten beidseitig des Wohn- und Verwaltungsgebäudes an der Schäftlarnstraße wurden 1924 für die Fahrleitungswerkstätte umgebaut.


1909 wurde das Wohn- und Verwaltungs-Gebäude an der Schäftlarnstraße zwischen den zwei Werkstattgebäuden um ein drittes Stockwerk ergänzt. Aufnahme nach 1924 nach Umbau für Fahrleitungswerkstätte..

Gebäudeplan vom April 1914 für den Umbau der ehemaligen „Anhängwagenhalle“.
Bei Recherchen in den verschiedenen Archiven kommen einem viele Dokumente unter. So ein Betriebshof wie dieser sehr große und wichtige wurde auch Ende des 19. Jahrhunderts nicht einfach aufgestellt und basta. Es gibt ein langes Planungsverfahren, das ab 1890 wohldokumentiert in den Archiven liegt. Da gibt es Einwände der Localbaukommision, berechtigte Einsprüche der Nachbarn, – hier vor allem von der Wollfilzmanufaktur, aber auch ganz banale Schriftwechsel zu den Baulinien, denn damals war weder die Dreimühlen-, Staub- oder später Schäftlarnstraße groß befestigte Straßen mit genau vermessenen Grundstücksgrenzen. Nach mehrfacher Lektüre dieser über 300 Seiten langen Dokumentenliste rund um diesen Betriebshof kann ich feststellen, dass Planungsabläufe von damals zu den heutigen in ihrer Umständlichkeit wenig Unterschied hatten. Doch eines musste ich auch feststellen: die Antworten und Bearbeitungen der Schreiben erfolgte innerhalb weniger Tage, was damit auch die kurze Planungszeit und später Bauzeit erklärt.
Ein kleines Schmankerl-Dokument aus dem Jahr 1918 habe ich noch ausgesucht: der Personalstand der Stadt in der Kalenderwoche 1918/21

Für die Arbeitswagen der Fahrleitungswerkstätte wurden auf der Südseite fünf Tore mit Fahrleitung eingebaut. Die hintere Lackiererei wurde zur Kraftwagenhalle umgestaltet. Dadurch wurde die Schiebebühne (früher Trakteur genannt) zwischen den beiden Werkstatthallen entbehrlich und ausgebaut.
Um die Lagerflächen für das Oberbaulager zu erhalten wurde das Grundstück im Süden bis zum Dreimühlenbach ausgedehnt.
Durch diese Verlagerung konnte die alte Wagenhalle wieder zum Abstellen von Trambahnwagen des Betriebs genutzt werden.
Die beiden provisorischen hölzernen Wagenhallen im Bereich des südlichen Gleislagers wurden 1924 abgebrochen. Da für die Gleisbaubearbeitungswerkstätte mit ihrem Maschinenpark kein Platz mehr vorhanden war, wurde dieser Bereich 1931 in den aufgelassenen Bahnhof Wilhelmstraße verlagert.



Wagenparade der Werkstattwagen im Betriebshof 1 an der Schäftlarnstraße.
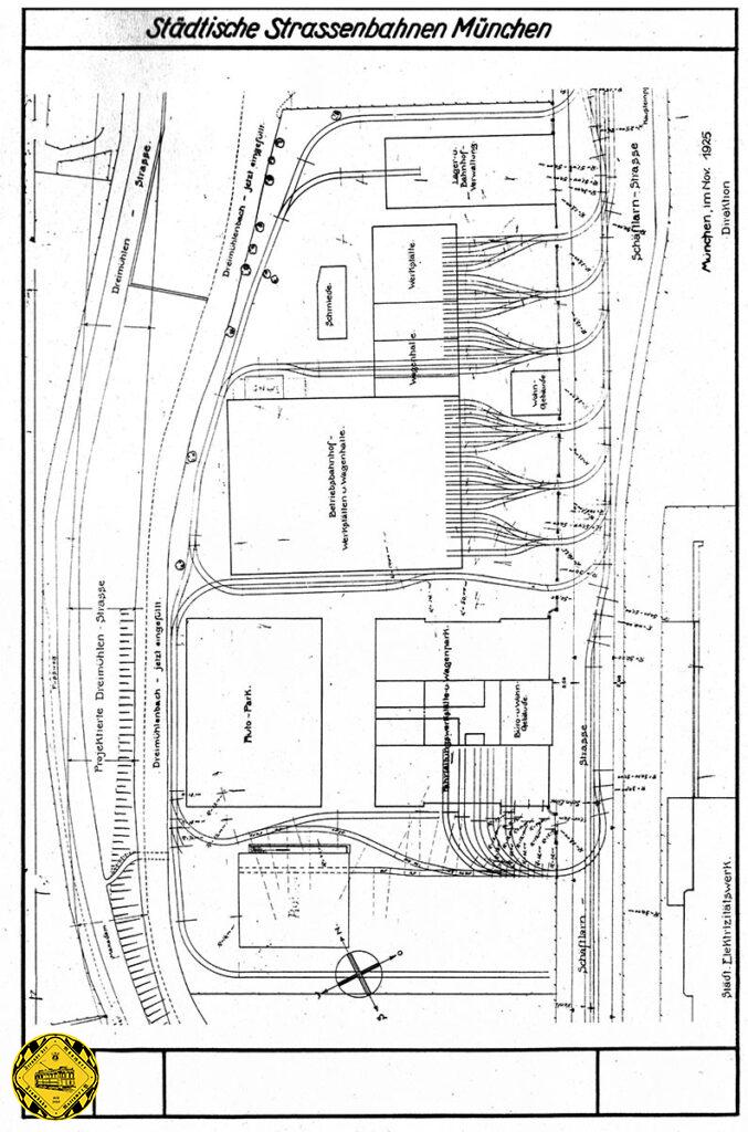
Der Gleisplan des Betriebshofs 1 an der Schäftlarnstraße im Jahr 1925 in seiner maximalen Ausbauphase.
Als wäre es gestern gewesen: Heute befindet sich ein Teil der Großmarkthalle auf dem ehemaligen Gebiet des Trambahndepots Nummer 1 an der Schäftlarnstraße. Streckenpaln und Grundriss des Depots von 1925.
© GoogleEarth, Simulation Reinhold Kocaurek


1932 wurde eine zweite moderne Kraftwagenhalle südlich der alten (ehemals Lackiererei) erbaut, die ab 1934 dem stark anwachsenden Busbetrieb diente. Neue Autohalle in Stahlbauweise, errichtet 1932 zuerst für Kraftwagen (ab 1934 für Omnibusse)


Das Städtische Kraftwerk an der Schäftlarnstraße 1940 mit den Gleisanlagen des Isartalbahnhofs im Vordergrund.
1942 wurden viele Busse auf Holzgasantrieb umgestellt. Dazu wurde in der ehemaligen Schmiede eine Holzaufbereitungsanlage eingebaut. 1943 wurde in der Kraftwagenhalle ein Pferdestall für die Zugpferde der Spurturmwagen eingerichtet.

Zerstörte Fahrleitungswerkstätte

Zerstörte alte Wagenhalle und dahinter ehemaliger Pferdestall.

Zerstörte große Wagenhalle mit ehemaliger Schmiede

Zerstörte Fahrleitungswerkstätte ohne Dach
Am 2. Oktober 1943 wurde der gesamte Bahnhof bei einem Luftangriff weitgehend zerstört, wohl auch wegen seiner Nähe zu den Anlagen der Reichsbahn (Südbahnhof mit Großmarkthalle und Isartalbahnhof). Nur 10 % der Gebäude überstanden den Krieg, wobei auch diese grossteils nicht mehr überdacht waren

Das Ende des Betriebshofs…….
Blick auf die Reste des Betriebshofs Schäftlarnstraße am 14. Februar 1947

Nach dem Krieg wurden die Mauern der Wagenhallen abgerissen und nur die Busgebäude und die Gebäude der Fahrleitungswerkstätte, allerdings in stark vereinfachter Form, wieder aufgebaut. Die Bilder zeigen die stark vereinfachten Wiederaufbauten der Fahrleitungs-Werkstätte.
1952 wurde der Busbetriebshof im Bahnhof 1 aufgegeben, dafür zog der Lastwagenbetrieb vom Bahnhof 4 in die Bushallen ein. 1954 wurde dann ein Teil des Geländes an die expandierende Großmarkthalle verpachtet. Im Juni 1955 wurde der Werkhof der Hochbauabteilung von der HW in der Ständlerstraße in den Bahnhof 1 verlagert.

1958 wurde dann das Mastenlager der Fahrleitungswerkstätte als letzter Bestandteil des ehemaligen Bahnhofs 1 in die HW verlagert. Im Jahr 1963 zog schließlich der Werkhof der Hochbauabteilung in das frei gewordene Areal des aufgelassenen Betriebshofs Seeriederstraße.

Werkstattwagen 50 vor den stark vereinfachten Wiederaufbauten der Fahrleitungswerkstätte mit dem städtischen Kraftwerk Schäftlarnstraße im Hintergrund.

Das an der Schäftlarnstraße dadurch freiwerdende Gelände wurde ebenfalls an die Großmarkthalle übergeben, womit der Bahnhof 1 im Jahr 1963 endgültig aufgehört hatte zu existieren.


© FMTM e.V.
Diese Dokumentation entstand mit der Unterstützung von Peter Hübner, Klaus Onnich, Dieter Kubisch, Florian Schütz und Frederik Buchleitner sowie dem Bayerischen Hauptstaatsarchiv, dem Staatsarchiv München und besonders dem Stadtarchiv München. Zusammengetragen & umgesetzt hat diese Seite Reinhold Kocaurek.

