Der Betriebshof 4 an der Soxhletstraße
Betriebshof 4 (neu)
bis 1930 Betriebshof 8
Soxhletstraße Nr.14
20.8.1913 – 15.6.1970
Zwei Wagenhallen, Werkstatt und Wohn- und Verwaltungsgebäude. 1930 dritte Wagenhalle
Im Krieg nur sehr gering zerstört und bis 1950 alle Kriegsschäden behoben. Neubau von Wasch- und Wartungshalle nicht mehr ausgeführt, da Stilllegung bis spätestens zur Olympiade geplant.

Franz von Soxhlet,
* 13.1.1848 in Brünn; † 5. Mai 1926 in München, war ein deutscher Agrikultur-Chemiker. Franz von Soxhlet gilt als Pionier der Pasteurisierung von Milch.


Tw 271, Typ A 2.2, Baujahr 1901, steht im Torbogen des Depots im April 1958.
Aufnahme: Peter Wagner
Die Trambahn AG beschloß schon im Jahr 1897 im Rahmen der Elektrifizierung der Münchner Trambahn einen neuen Betriebshof an der Ungererstraße zu bauen, da der Betriebshof an der Wilhelmstraße schon Ende des 19. Jahrhundert zu klein war und nicht mehr zu erweitern war wegen der dichten Bebauung in Schwabing. 1911 wurde dieser Betriebshof an der Ungererstraße in der Soxhletstraße von den Gemeindegremien genehmigt und die Mittel dafür freigegeben.
Durch die Ungererstraße ging damals schon eine zweigleisige elektrifizierte Strecke bis zur 1900 erbauten zur Aussegnungshalle des Nordfriedhofs.

1910 steht der TW 268 am Nordfriedhof. Im Hintergrund sieht man die Gärtnerei Brandl, die es heute noch an dieser Stelle gibt.

Stadtplan mit Trambahnstrecken von 1912: die Linie durch die Leopoldstraße kommend verzweigt sich an der Münchner Freiheit einmal weiter zur Parsivalstraße und Kölner Platz und zum anderen zum Nordfriedhof. Hinter dem Ungererbad war der Bauplatz für’s Depot.

Im Juli 1912 werden die Pläne des Architekten Rehlen für den neuen Betriebshof ausserhalb der Stadt an der Ungererstraße vorgelegt und am 16.12.1912 auch genehmigt. Die Baukosten werden ohne weitere Diskussion vom Magistrat durchgewunken. Am 20. August 1013 war dann Betriebsbeginn im neuen Bahnhof 8 der Münchner Trambahn.


Was hier im Plan als „kleine Halle“ bezeichnet wird, ist eine recht stattliche überbaute Fläche mit 90m Länge für 36 Triebwagen und Beiwagen und eine Werkstatt.

Der Grundriß der ersten Bauphase 1912 des Betriebshofs an der Soxhletstraße erklärt die beiden verschieden langen Gebäude und die für diesen Betriebshof so typischen Durchfahrtstore. Der Betriebshof hatte 2 viergleisige Hallen, eine 90m lang für 36 Wagen und die andere 110m lang 44 Wagen. Doch das reichte schon bald nicht mehr.
Der TW 189 auf Einrückfahrt der Linie 26 auf der Ungererstraße stadteinwärts mit der Abzweigung in die Soxhletstraße im Hintergrund.


Der Grundriß zeigt die erste Erweiterung des Depot an der Soxhletstraße aus dem Dezember 1929: es wurde von den Herren Beblo & Meitinger eine weitere diesmal 95m lange viergleisige Wagenhalle angebaut. Dafür wurde der alte Quertrakt abgerissen und in den neuen Süd-Ost-Trakt des Gebäudes verlegt. Nach den 1930 abgeschlossenen Erweiterungsarbeiten wurde der Betriebshof in der Wilhelmstraße aufgelassen und der Betriebshof in der Soxhletstraße bekam dessen Betriebshofnummer 4.



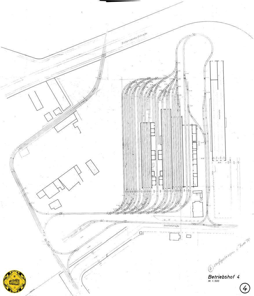
Unser Gleisplan ist auf das Jahr 1930 datiert und zeigt die nun drei großen Hallen, die Werkstätten und das freistehende markante Betriebsgebäude, heute als „Walmdachhaus“ erhalten & bekannt.

Den Weltkrieg überstand der Betriebshof an der Soxhletstraße fast unbeschädigt, die notwendigen Dachreparaturen wurden bis 1949 erledigt.
D 1.4-Tw 519 im Freigelände des Betriebshof 4 zur Reparatur nach einem Unfall Juni 1945.


Ein Blick in die Werkstatthalle mit Tw 104, Typ H 1.32 („Mailänder“) am 19.5.1950.
Das Jahr 1950 brachte noch eine letzte Erweiterung der Sozialräume durch Aufstockung und Neuaufteilung.
Die geplante Waschanlage wurde nicht mehr verwirklicht, weil die Planungen der neuen U-Bahn in den 60er-Jahren in dem Umfeld des Betriebshofs keinen Trambahnbetrieb mehr vorsahen.



Aus der Mitteldurchfahrt des Depots kommt der A-Tw 271 am April 1958, eingefangen von allen Seiten von unserem Fotografen Peter Wagner.
Die kleine Fahrzeugparade am 4. Juli 1958: Triebwagen 873 (M 3.64), TW 271 (A 2.2), TW 659 (F 2.10) und der TW 445 (D 6.5) im Depot an der Soxletstraße. das bis dahin einzige Umfahrungsgleis an der Westseite des Depot sollte nun bald um eine größere Freifläche zum Aufstellen der Wagen erweitert werden.

Am 29. September 1969 stehen der M3_m3-Zug 833/1697 der Linie 8 und der D6_f1-Zug 480/1352 der Linie E6 auf der Freifläche westlich des Depot an der Soxhletstraße


Der Fotograf Ulrich Theurer fing 1963 den G-Tw 681 als ersten in einer langen Aufstellungsreihe auf dem Frei-Gelände des Betriebshofs 4 an der Soxhletstraße ein.

E1-Tw 589 im Betriebshof Soxhletstraße mit Zügen der Linien 28 und E17 aufgenommen am 16.6.1962.

Ab 30.01.1965, als in der südlichen Ungererstraße der U-Bahnbau die Trambahn verdrängte, ging die Zufahrt via einer Ersatztrasse durch die Berliner Straße (in der heute noch alte Fahrleitungsmasten stehen) zur Leopoldstraße. Dazu wurde das Depot an der Soxhletstraße von Westen her angebunden bis zu seiner Auflassung.
Ein M5/m5-Zug der Linie 6 am nördlichen, nicht asphaltierten Ende der Berliner Straße unterwegs stadteinwärts: unten ist das Abzweige-Gleis zum Depot zu sehen und äußerst kurios eine Ampelanlage zum kreuzenden Bahngleis der Werksbahnanbindung der Lokomotiv-Fabrik Maffei, stillgelegt schon im Jahr 1937 – Sentimentalität unter Schienenfahrzeugen….
Rangierarbeiten auf dem Betriebshof 4 an der Soxhletstraße: im Bild Richtung Norden auch das markante Schulgebäude an der Fröttmanningerstraße, dazwischen der heutige Mittlere Ring, damals noch die Schenkendorfstraße mit fast ländlichem Charakter.

Da die Zufahrt in den Betriebshof durch die Ungererstraße geschlossen wurde, errichtete man durch die,Berliner Straße eine neue Betriebsstrecke zur Leopoldstraße und drehte die Gleisharfe dafür in westliche Richtung (vergleiche Plan 1930).


Im Betriebshof 4 an der Soxhletstraße stehen zwei G-Wagen schon mit der neuen Weichen-Orientierung Richtung Westen.

Ab dem 14.08.1967 verschwand auch die Umleitungsstrecke der Linie 6 durch die Berlinerstraße, der Anschluß des Betriebshof 4 blieb jedoch von der Leopoldstraße aus erhalten.

Die Berlinerstraße 1970 mit der neuen Bebauung und der Oberleitung. Das ist ein Bild aus der Übergangszeit dieses Geländes: München wird modern Ende der 60er-Jahre im Olympia-Fieber. Im Bild auch noch die Oberleitung. Die Berlinerstraße gibt es heute nicht mehr in dieser Form, es ist ein riesiges Wohngebiet entstanden mit einem großen See.

M5-Tw 978 + m5-Bw 1805 steht im Jahr 1964 im Betriebshof 4, im Hintergrund die Aussegnungshalle der Nordfriedhofs.

P3-Tw 2005+p3-Bw 3005 steht am 20.4.1968 im Betriebshof Soxhletstraße dort, wo heute die Berlinerstraße entlang geht.

P3-Tw 2005+p3-Bw 3005 vor dem Betriebshof Soxhletstraße am 20.4.1968.

1967 schrieb das Depot an der Soxhletstraße ein letztes Mal Geschichte: per Tieflader kam vom Schwabinger Güterbahnhof keine 500 Meter weiter der erste U-Bahnwagen in München an.

Das Gelände des Betriebshof 4 an der Soxhletstraße wird immer mehr zum Abstellplatz für Altwagen: am 20. April 1968 stehen neben vielen anderen Wagen auch der f-Beiwagen 1358, 1399 und 1356 sowie der g-Beiwagen 1451 auf den weitläufigen Gleisanlagen.

Am 15.Juni 1970 wurde der Betriebhof 4 an der Soxhletstraße geschlossen. Er wurde noch zweimal für Busbetrieb umgebaut, die meisten Gruben aufgeschüttet und die Räume neu eingeteilt.
In einer der Hallen des Betriebshofs hatte der Trambahnfreund Johann Pollitzer noch bis zum Abbruch der Hallen im Jahr 1982 zwei von ihm gekaufte Trambahnzüge untergestellt, nämlich die beiden E-Triebwagen 539 und 624 sowie die beiden g-Beiwagen 1456 und 1472. Das Gelände war ursprünglich für einen seiner Zeit geplanten dritten Omnibusbetriebshof der Stadtwerke vorgesehen, man entschied sich allerdings Ende der 1970er Jahre anders und verwirklichte auf seiner Fläche das Stadtviertel „Schwabing am See“.



Der Ordnung halber auch noch die Abbruchgenehmigung für das Depot an der Soxhletsraße im Original aus dem Jahr 1981.
Heute ist fast nichts mehr vorhanden, dort steht jetzt die Siedlung Schwabing am See. Einziges Relikt des Betriebshofs 4 ist das Gebäude des Nachbarschaftstreffs „Walmdachhaus“ an der Theodor-Dombart-Straße 9. Das war das ehemalige Wohn- und Verwaltungsgebäude des Betriebshofs 4.
Aufnahme 2014: Reinhold Kocaurek

Fotomontage einst & jetzt: die genaue Lage des Depots an der Soxhletstraße 1965. Es ist schon die U-Bahnbau-Umfahrung der Linie 6 deutlich oben zu erkennen und unten die Zufahrtsgleise durch die Soxhletstraße zur Ungererstraße. (Montage GoogleEarth/Reinhold Kocaurek)

© FMTM e.V.
Diese Dokumentation entstand mit der Unterstützung von Peter Hübner, Klaus Onnich, Dieter Kubisch, Florian Schütz und Frederik Buchleitner sowie dem Bayerischen Hauptstaatsarchiv, dem Staatsarchiv München und besonders dem Stadtarchiv München. Zusammengetragen & umgesetzt hat diese Seite Reinhold Kocaurek.

