Der Betriebshof 6 an der Hofmannstraße
Betriebshof 6 Hofmannstraße Nr.38
1912 – 19.10.1971
- Große Wagenhalle auch Zeppelinhalle genannt
- Starke Zerstörungen durch Luftangriffe
- Große Wagenhalle bis 1948 wieder aufgebaut
- 1948 bau der O-Bushalle für die Linie zum Romanplatz
- Betriebshof bis 1962 für modernes Taktverfahren modernisiert.
Nach der Stilllegung wurden dort ab 1972 alle zu verschrottenden Altwagen der Bauarten D, F, und J samt Beiwagen gesammelt und teilweise auch verschrottet
Gebäude weitgehend noch vorhanden aber Nutzung durch städtischen Bauhof. Auf dem Westteil des Geländes befindet sich heute der Busbahnhof Aidenbachstraße mit Zugang zur U 3 und Parkdeck auf dem Dach.

Betriebshof 6 an der Hoffmannstrasse 1925

Das Depot an der Hofmannstraße entstand aus der ehemaligen Fabrikhalle des Eisenwerk München A. G. , der sogenannte Zeppelinhalle an der Hofmannstraße 38, vorher Obersendling 51. Das war damals ein langgestreckter Satteldachbau mit mehrfach geknicktem Dach und östlicher Fachwerkfassade mit Stichbogenfenstern, die im Innern dreischiffig mit einer Tragkonstruktion aus Eisenfachwerk gestaltet war. Geplant und errichtet wurde sie von Carl Vent und Albert Schmidt in den Jahren 1899/1900 vor der Stadt.

Eisenwerk München A. G.
Gegründet wurde die Firma am 12.12.1898 zwecks Erwerb und Fortbetrieb der von den Firmen „Ludwig Kiessling & Cie, Kommanditgesellschaft Steger“ und „Carl Moradelli“ betriebenen Fabrikgeschäfte, sowie Erwerb des Grundbesitzes der Herren Phil. Roeder sen. und Ing. Hans Steger in den Lindwurmstraße und der Hofmannstraße.
Die Gesellschaft spezialisierte sich auf den Bau von Brückenkonstruktionen, Eisenhochbau, Zentralheizungen, Bau von Kranen, Aufzügen, Eisenbetonbauten und Bühneneinrichtungen. 1899 wurde für neue Fabrikanlagen ein Terrain am Sendlinger Oberfeld erworben. Auftragsmangel und notwendige Abschreibungen auf Halbfabrikate führten 1904 zu einem die Hälfte des Kapitals übersteigenden Verlust. Bei einer Sanierung im Jahr 1906 waren die Aktien zur Zusammenlegung und Abstempelung einzureichen. Bei einer neuerlich notwendigen Sanierung im Jahr 1910 weigerten sich die Großaktionäre, weiteres Geld nachzuschießen. Daraufhin ging die Gesellschaft in Liquidation. Die Aktien, 1900 von der Bayerischen Bank zu 152,50% eingeführt, fielen an der Münchner Börse kontinuierlich bis auf 0.
Quelle: Hanseatisches Sammlerkontor für
Historische Wertpapiere
Aktie des Eisenwerk München, bisher sind nur 3 Blätter bekannt, letzter erzielter Verkaufswert 6000.- €.


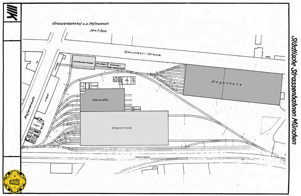
Im Jahre 1909 bestand die Absicht, auf einem Grundstück an der Tölzer Straße in Obersendling einen neuen Straßenbahnhof zu errichten. Das Projekt wurde jedoch nicht verwirklicht, da sich 1910 die viel günstigere Gelegenheit bot, die in den Jahren 1899/1900 erbaute Fabrikanlage des Eisenwerks München, vormals Kißling & Co. Moradelli, an der Hofmannstraße No. 38 zu erwerben. Die Werkanlage wurde in den Jahren 1911/12 nach Plänen von Walch und Dix zu einem Straßenbahnhof umgebaut, der im Jahre 1912 eröffnet wurde und später die Nummer 6 bekam.
Es waren vorhanden: eine zwölfgleisige, große Wagenhalle für 63 Motorwagen und 75 Anhängewagen, eine kleinere, südlich sich anschließende Reparaturwerkstätten-Halle für 4 Motorwagen und 12 Anhängewagen und mit den dazu gehörenden Gebäuden für die Nebenwerkstätten (Schmiede, Lager etc.), ein Büro- und Wohngebäude und Lager an der Hofmannstraße, ein an der Gmunder Straße gelegener Holzbau, der später als Anhängewagenhalle diente, mit Anbauten zur Lagerung von Salz und· Sand und eine „Villa“ an der Aidenbachstraße No. 45, in welcher Dienstwohnungen eingerichtet wurden. Ein Privatanschlußgleis zum
Industriegleis der Staatsbahn wurde mit übernommen.

Bei Eröffnung waren an Gleisanlagen vorhanden: Zufahrtsgleis durch die Hofmannstraße: 337 m, Hofgleise: 918 m, Hallen- und Werkstättengleise: 1414 m; insgesamt 2669 m.

Von Mai bis August 1925 wurde die hölzerne Beiwagenhalle erweitert, die Lageranbauten beseitigt und die Gleisanlagen entsprechend verändert. Auf 10 Gleisen hatten nun 80 Beiwagen Platz, in den folgenden Jahren vornehmlich ehemalige Pferdebahnwagen, die im Normalverkehr nicht mehr verwendet wurden. Im Oktober desselben Jahres wurden auch eine große Sandtrockenanlage und ein_ Salzlager erstellt.
Am 14.Juli 1925 nehmen die Neubauten schon Formen an. Sie konnten Ende August bezogen werden.





Die Beiwagenhalle wurde 1939 zur Lagerung von Fahnen für die Gauleitung zweckentfremdet, und im Jahre 1940 wurde im Bahnhofsgelände ein Gefangenenlager errichtet. 1943 wurde der zweite Stock des Wohn- und Verwaltungsgebäudes zu einem Heim für Arbeitsmaiden ausgebaut. Zwischen den Fliegerangriffen versuchte man, wie auch in den anderen Bahnhöfen, die Fliegerschäden einigermaßen zu beheben. Der Bahnhof war 1945 zur Hälfte zerstört und nur noch 90% der Hallenflächen waren überdacht. Das Werkstättengebäude und das Werkwohngebäude an der Aidenbachstraße waren total zerstört (22. Juli 1944); die Beiwagenhalle brannte im September 1942 ab.
Am 3.Februar 1947 sind die Wiederaufbauarbeiten noch nicht abgeschlossen. Das Doch ist notdürftig abgestützt und es stehen zerstörte Triebwagen auf dem Gelände des Betriebshofs.


Nach Schäden im Zweiten Weltkrieg wurde die Westfassade und nördliche Anbauten verändert wiederhergestellt und es erfolgten nachträgliche Ein-, An- und Unterbauten. Bereits im November 1955 konnte die neue, in Spannbetonbauweise hergestellte Halle benützt werden und im Januar 1956 war sie fertiggestellt. Bei 2950 qm Grundfläche bietet sie auf 6 Gleisen Platz für 17 Großraumzüge.

Am 9.März 1956 wagte der Fotograf im Betriebshof Hofmannstraße einen Blick in die neue Wagenhalle.

Da die Züge zum Einrücken immer noch über die sehr belebte Boschetsrieder Straße und durch die Hofmannstraße zurückstoßen mussten, ging man im September und Oktober 1951 daran, durch Einbau von Einfahrtstoren an der Westseite der Halle und entsprechender Umgestaltung der Gleisanlagen den Bahnhof für Durchgangsbetrieb umzubauen. Zugleich wurden die Tore an der Ostseite für die neuen Großraumzüge verbreitert.

Ein Wagen der Linie 18 rückt aus dem Betriebshof an der Hofmannstraße aus.

Am 30.November 1960 wurde der Bau der neuen Wartungshalle im Betriebshof an der Hofmannstraße dokumentiert und dabei auch rechts das Industriegleis zum ebenfalls gerade im Bau befindlichen Heizkraftwerk im Hintergrund abgelichtet. Links kann man die Abstellfläche mit den O-Bussen erkennen. Die Industriegebäude rechts zur Boschetsriederstraße sind inzwischen alle abgerissen und es entstand ein neues Wohnquartier.


Die Wagenhalle im Betriebshof Hofmannstraße am 7.Juni 1971 noch mit einem Bestand an Altwagen.

Am 4.Juni 1971 stehen die M-Wagen bereit zum Einsatz im Betriebshof an der Hofmannstraße.


Nach der Stilllegung wurden dort ab 1972 alle zu verschrottenden Altwagen der Bauarten D, F, und J samt Beiwagen gesammelt und teilweise auch verschrottet

Der Betriebshof 6 wurde am 19. Oktober 1971 stillgelegt.
Am 16.August 1977 entstand diese Bilderreihe der Auflösung dieses Betriebshofs:











Ein Großteil der Bebauung des Depots an der Hofmannstrasse ist noch erhalten, die Schienen sind aber verschwunden. Eine Kombination von einst & jetzt.
© GoogleEarth, Simulation Reinhold Kocaurek FMTM eV.
Beschluss des Ausschusses für Stadtplanung und Bauordnung
vom 17.02.2016 (VB)
(…) Ob eine entsprechende Konzeption auch in Hinblick auf den angestrebten Erhalt der Zeppelinhalle tragfähig ist, ist zu prüfen. Angesichts der knappen Freiflächen ist insbesondere zu prüfen, ob ggf. alternativ auch eine Umnutzung der Zeppelinhalle als urbane Nutz- oder Freifläche mit Erholungsangeboten möglich ist. Für die private Freiraumversorgung der Wohnungen sollen auch Dachgärten in die Planung einbezogen werden.(…)
Quelle: Stadtbezirk 19 – Thalkirchen-Obersendling-Forstenried-Fürstenried-SollnSitzungsvorlagen Nr. 14-20 / V 04366


© FMTM e.V.
Diese Dokumentation entstand mit der Unterstützung von Peter Hübner, Klaus Onnich, Dieter Kubisch, Florian Schütz und Frederik Buchleitner sowie dem Bayerischen Hauptstaatsarchiv, dem Staatsarchiv München und besonders dem Stadtarchiv München. Zusammengetragen & umgesetzt hat diese Seite Reinhold Kocaurek.

